Klompenmaker 19, Oud-Beijerland
verkocht onder voorbehoud
Details
Overdracht
- Vraagprijs
- € 400.000,- k.k.
- Status
- verkocht onder voorbehoud
- Aanvaarding
- in overleg
Bouw
- Soort woning
- woonhuis
- Soort woonhuis
- eengezinswoning
- Type woonhuis
- tussenwoning
- Aantal woonlagen
- 3
- Kwaliteit
- normaal
- Bouwvorm
- bestaande bouw
- Bouwjaar
- 1981
- Bouwperiode
- 1981-1990
- Onderhoud binnen
- goed
- Onderhoud buiten
- goed
- Dak
- zadeldak
- Voorzieningen
- mechanische ventilatie, tv kabel, buitenzonwering, rookkanaal, dakraam en glasvezel kabel
Energie
- Energielabel
- B
- Verwarming
- c.v.-ketel
- Warm water
- c.v.-ketel en elektrische boiler eigendom
- C.V.-ketel
- gas gestookte combi-ketel uit 2024 van Nefit Trendline HRC25, eigendom
Oppervlakten en inhoud
- Woonoppervlakte
- 97 m²
- Perceeloppervlakte
- 107 m²
- Inhoud
- 344 m³
- Bergruimte oppervlakte
- 6 m²
Indeling
- Aantal kamers
- 5
- Aantal slaapkamers
- 4
Buitenruimte
- Ligging
- aan water, aan park, aan rustige weg en in woonwijk
- Tuin
- achtertuin met een oppervlakte van 66 m² en is gelegen op het noordwesten
Bergruimte
- Schuur/berging
- vrijstaand hout
Omschrijving
Comfortabel wonen op een rustige plek
Op een prettige en rustige locatie in de geliefde wijk Zoomwijck vindt u deze verzorgde en goed onderhouden eengezinswoning met 4 slaapkamers. De woning ligt direct aan een groene singel, wat zorgt voor veel rust en privacy, terwijl scholen, winkels, speelpleint... lees meer
Comfortabel wonen op een rustige plek
Op een prettige en rustige locatie in de geliefde wijk Zoomwijck vindt u deze verzorgde en goed onderhouden eengezinswoning met 4 slaapkamers. De woning ligt direct aan een groene singel, wat zorgt voor veel rust en privacy, terwijl scholen, winkels, speelpleintjes en het openbaar vervoer eenvoudig bereikbaar zijn. Een fijne combinatie van comfortabel wonen én praktische voorzieningen in de buurt.
De huidige eigenaren hebben de afgelopen jaren veel zorg besteed aan het moderniseren van de woning. Zo zijn onder meer de keuken (2022), badkamer (2024) en CV-installatie (2024) vernieuwd en is er aandacht besteed aan duurzaam en prettig wooncomfort. De woning heeft al een energielabel B, maar heeft ook nog diverse mogelijkheden voor verdere verduurzaming, zoals zonnepanelen. Met in totaal vier slaapkamers, een sfeervolle living, onderhoudsvriendelijke tuin en voldoende bergruimte biedt de woning alles wat u zoekt.
Indeling
Via de entree bereikt u de lichte doorzonwoonkamer met massieve houten vloer. Het grote raam aan de voorzijde én de vernieuwde pui aan de achterzijde zorgen voor een fijne lichtinval. De open keuken (2022) is uitgevoerd in een extra diepe opstelling voor extra bergruimte en voorzien van moderne apparatuur, waaronder een oven, XXL-vaatwasser, koelkast, no-frost vriezer en een 10 liter close-in boiler voor snel warm water. De voorbereiding voor een inductiekookplaat is overigens ook al aanwezig. Via de openslaande deuren bereikt u de achtertuin.
Eerste verdieping
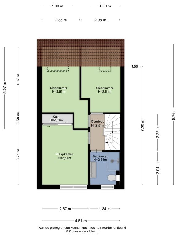
Hier bevinden zich drie slaapkamers (3,71 x 2,87 met inbouwkast, 4,07 x 2,33 en 3,07), alle voorzien van een rustige afwerking en vloerbedekking. De moderne badkamer (2024) beschikt over een inloopdouche met regendouche, dubbele wastafel, een extra (randloos) toilet én een elektrische designradiator voor warme handdoeken.
Tweede verdieping
De zolderverdieping is in 2016 praktisch ingedeeld met een vaste trap, voorzolder met opstelplaats voor wasmachine en droger en een vierde slaapkamer (3,09 x 2,86). Daarnaast is er een berging of kleine werkruimte (1,44 x 2,86) aanwezig. Achter de knieschotten is voldoende bergruimte aanwezig. Dakramen zijn voorzien van horren en zonwering.
Tuin
De verrassend zonnige achtertuin is onderhoudsvriendelijk aangelegd en biedt ruimte voor een fijne zitplek, speeltuin voor kinderen of gezellige zomerse avonden. De tuin is via de achteringang bereikbaar. Het tuinhuis biedt handige extra bergruimte, al verdiend de bouwkundige staat van de schuur wel enige aandacht. De ligging aan de singel aan de voorzijde geeft een rustig en vriendelijk straatbeeld.
Bijzonderheden
• Veel vernieuwd en verbeterd aan de woning
• Nieuwe HR-combi CV-ketel (2024) met extra hoge watercapaciteit
• Moderne badkamer (2024) met extra toilet en dubbele wastafel
• Keuken (2022) met apparatuur en extra diepe opstelling
• Vier slaapkamers
• Massief houten vloer op de begane grond
• HR++ glas beneden; de rest dubbele beglazing in houten kozijnen
• Mechanische ventilatie vernieuwd in 2023
• Glasvezelaansluiting aanwezig
• Rustige ligging aan de singel
• Alle voorzieningen in de directe omgeving: scholen, winkelcentrum, openbaar vervoer en speelpleintjes
• Alle originele bouwtekeningen zijn aanwezig
Een prettig, compleet en keurig onderhouden gezinshuis
Klompenmaker 19 is een woning die u zonder grote verbouwingen kunt betrekken. Dankzij de rustige ligging, de moderne afwerking en de praktische indeling is dit een fijne plek om met plezier te wonen.
Wilt u deze woning graag bezichtigen?
Neem gerust contact met ons op voor het plannen van een persoonlijke bezichtiging.





